Capannone in vendita

Grugliasco, Corso C. G. Allamano - Grugliasco - Lesna
€ 296.000
Prezzo aggiornato
4 locali 4 locali
300 Mq 300 Mq
2 bagni 2 bagni

Capannone in vendita

Grugliasco, Corso C. G. Allamano - Grugliasco - Lesna

Descrizione annuncio

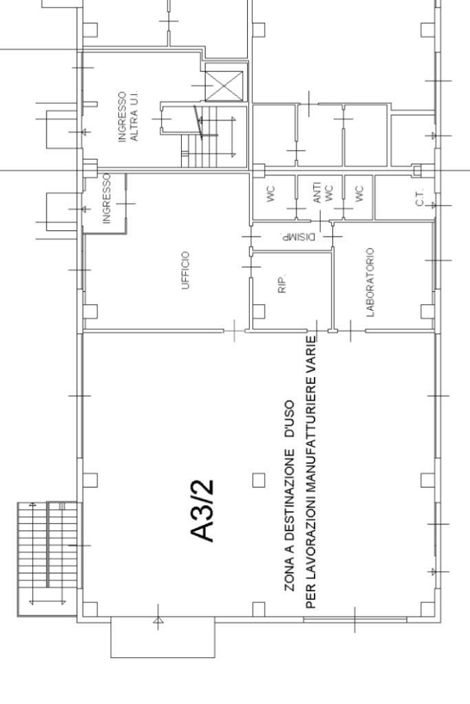
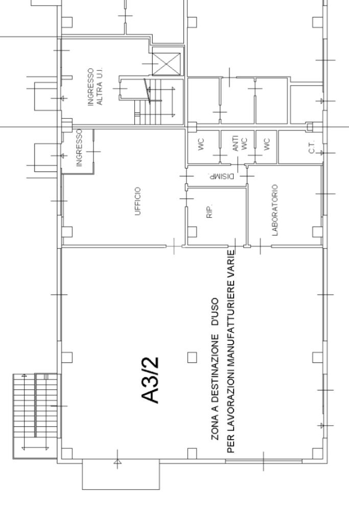
VENDITA – GRUGLIASCO, all'interno di un funzionale complesso industriale, in posizione strategica tra Corso Allamano e Via Cumiana, proponiamo in vendita un capannone di circa 300 mq, ideale per aziende che necessitano di spazi produttivi e direzionali integrati in un contesto recente e ben collegato.

L'immobile, costruito nel 2008, si presenta in ottime condizioni e si sviluppa su una superficie complessiva così suddivisa:

190 mq circa destinati ad area produttiva

110 mq circa adibiti ad uffici, articolati in tre vani, con doppi servizi e impianto di riscaldamento e raffrescamento autonomo

La zona produttiva dispone di accesso carraio (H 4,50 m), uscita di sicurezza pedonale e un’altezza interna di 4,80 m, offrendo uno spazio pratico e ben fruibile. Gli uffici, con ingresso pedonale indipendente, garantiscono comfort e riservatezza, ideali anche per attività direzionali.

L’accesso carraio avviene da Via Cumiana, mentre è presente un ingresso pedonale da Corso Allamano, che assicura ulteriore comodità per personale e visitatori.

A livello di sicurezza, l’immobile è dotato di inferriate su tutti i serramenti e di un cancello scorrevole aggiuntivo a protezione del carraio.

Completano la proprietà 10 posti auto coperti e numerati al piano interrato del complesso, facilmente raggiungibili tramite scala esterna adiacente al fabbricato.

È inoltre prevista la possibilità di installare un’insegna sulla facciata, utile per garantire visibilità all’attività.

Soluzione adatta a realtà che necessitano di uno spazio completo, efficiente e ben inserito nel contesto produttivo e direzionale dell’area ovest di Torino.

Mostra tutto

Nelle vicinanze

Trasporto pubblico Trasporto pubblico
Paradiso
Paradiso
2,7 Km
Fermi
Fermi
2,8 Km
stazione di Grugliasco
stazione di Grugliasco
2,1 Km
Brissogne Capolinea
Brissogne Capolinea
2,9 Km
L. Da Vinci
L. Da Vinci
120 m
Ricariche auto elettriche Ricariche auto elettriche
Tris Car Di Mina Giuseppe | EnelX
2,6 Km
Collegno Pastrengo | ENELX
3,0 Km
Scuole Scuole
66 Martiri
1,6 Km
Scuola Elementare Giuseppe Ungaretti
1,7 Km
Istituto Tecnico Industriale Statale Ettore Majorana
1,8 Km
Facoltà di Agraria e Veterinaria
1,8 Km
Polo scolastico del Barocchio
1,8 Km
Farmacia Farmacia
Farmacia
840 m
Vecco
1,6 Km
I Gelsi
2,0 Km
Farmacia Nuova di Grugliasco
2,3 Km
Farmacia Comunale
2,7 Km
Supermercati Supermercati
Di Piu
750 m
Basko
840 m
Compro Qui
1,5 Km
GS
1,7 Km
Penny Market
1,7 Km
Negozi Negozi
Alimentari
1,1 Km
latteria - milk and food
1,5 Km
Panetteria
1,5 Km
Carrefour Express
1,9 Km
Negozi
2,3 Km
Bar Bar
Bar
1,1 Km
Pausa Café
1,5 Km
Gelateria
1,5 Km
Bar - tabacchi
1,9 Km
Foodball
2,2 Km
Ristoranti Ristoranti
Da Dino
900 m
Pizza Pazza
1,4 Km
Pausa Café
1,5 Km
Pizzeria degli Angeli
1,5 Km
Villa Torre
1,6 Km
Mostra tutto

Caratteristiche

Rif.:
61083335
Piano:
Terra di 2
Totale piani:
2
Posti auto:
10
Condizionamento:
Autonomo
Ascensore:
No
Mostra tutto
Prezzo Prezzo
€ 296.000
Rata mutuo Rata mutuo
€ 1.364 / mese
Spese annue Spese annue
€ 1.500
Proponi il tuo prezzoProponi il tuo prezzo

Altre caratteristiche

Descrizione dei locali
Bagno Con Finestra

Classe Energetica

E
E
E
E
E
E
E
E
E
EP globale non rinnovabile:
32328.00 kW h/m² anno
EP globale rinnovabile:
14387.00 kW h/m² anno
EP invernale del fabbricato:
EP estiva del fabbricato:
Anno di costruzione:
2008
Riscaldamento:
Autonomo
Tipo impianto:
Ad aria
Tipo alimentazione:
Metano

Prezzo ridotto di €1 (13%%)

Ti interessa visionare l'immobile?

Fissa un appuntamento  Fissa un appuntamento

Richiedi informazioni

* Questi campi sono obbligatori

Calcola il tuo mutuo

Semplice e senza impegno
Anticipo

( % )
Mutuo

( % )

pochi semplici passi

inserisci i tuoi dati
Questionario completato
Grazie per aver richiesto un appuntamento senza impegno con un nostro Consulente del Credito e Assicurativo.

Hai inserito correttamente tutti i dati necessari e a breve riceverai una e-mail con un link da convalidare per inviare i tuoi dati.
Affiliato
Ovest Industriale Snc
Corso Francia, 113 Ter 10093 Collegno (TO)
Corso Francia, 113 Ter 10093 Collegno (TO)
Zona: Collegno-Grugliasco-Rivoli-Alpignano-Pianezza
Mostra su mappa
Affiliato
Ovest Industriale Snc
Corso Francia, 113 Ter 10093 Collegno (TO)

2025 Tecnocasa Franchising S.p.A. - P. IVA 08365160152 - Via Monte Bianco 60/A 20089 Rozzano (MI). Ogni agenzia ha un proprio titolare ed è autonoma. Privacy policy | Policy utilizzo | Cookie policy