Capannone in affitto

Rivoli, Via acqui - Cascine Vica
€ 3.500 / mese
1 locale 1 locale
865 Mq 865 Mq
2 bagni 2 bagni

Capannone in affitto

Rivoli, Via acqui - Cascine Vica

Descrizione annuncio

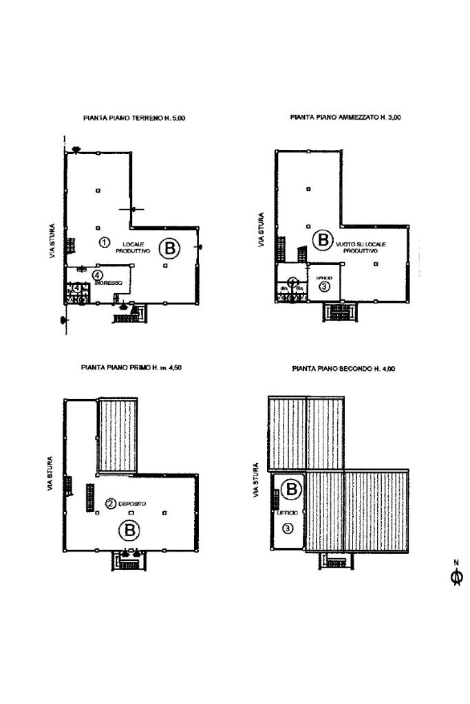
Nel cuore di Cascine Vica, nel comune di Rivoli, si propone in locazione un capannone artigianale di circa 865 mq.

L'immobile risulta disposto su tre livelli:

Piano terra di circa 400 mq, suddiviso in circa 335 mq di zona produttiva e 65 mq di zona uffici e servizi,

Primo piano di circa 65 mq di uffici e servizi,

Piano secondo di circa 335 mq attualmente utilizzati come uffici e deposito,

Piano terzo di circa 65 mq attualmente utilizzati come uffici,

Cortile di proprietà di circa 500 mq comodo come area di manovra e carico scarico dei mezzi, oltre ad essere un'opportunità di area parcheggio.

Sono presenti due accessi carrai diretti al capannone che facilitano le operazioni di carico-scarico, inoltre il locale è dotato di impianto di riscaldamento al piano terra, e predisposto per l'installazione di spliti ai piani superiori.

Dotato di scala antincendio lato cortile.

La struttura, libera su quattro lati, offre ampi spazi su più livelli, ideali per attività produttive o di stoccaggio. La posizione strategica consente un rapido collegamento con le principali arterie stradali della zona, facilitando la logistica e il trasporto.

Il canone di locazione richiesto è da considerarsi oltre IVA.

Mostra tutto

Nelle vicinanze

Trasporto pubblico Trasporto pubblico
stazione di Collegno
stazione di Collegno
2,4 Km
Pavia Capolinea
Pavia Capolinea
300 m
Tagliamento
Tagliamento
330 m
Ricariche auto elettriche Ricariche auto elettriche
RIVOLI Via Pavia | ENELX FAST
390 m
Mercatò Rivoli
540 m
Mercatò Rivoli | EnelX fast
600 m
Collegno Corso Francia | EnelX
1,1 Km
Tris Car Di Mina Giuseppe | EnelX
1,2 Km
Scuole Scuole
Scuola Primaria "Gianni Rodari"
210 m
Scuola Secondaria di primo grado Primo Levi
590 m
Scuola Primaria Salvador Allende
810 m
Scuola Primaria Cavour
1,1 Km
Scuola Primaria Freinet
1,1 Km
Farmacia Farmacia
Farmacia Comunale 9
290 m
Parafarmacia Conad
360 m
Santa Cristina
490 m
Farmacia San Paolo
630 m
Farmacia
890 m
Ospedali Ospedali
Ospedale di Rivoli - Emergency
2,3 Km
Ospedale di Rivoli
2,3 Km
Guardia Medica
3,0 Km
Supermercati Supermercati
Conad
360 m
Mercatò
550 m
CRAI
640 m
Crai
1,9 Km
Penny Market
2,0 Km
Negozi Negozi
Negozi
460 m
I frutti del grano
1,9 Km
Mattiazzo
2,1 Km
Re Bianco
2,1 Km
Ël forn ëd Rivulè
2,2 Km
Bar Bar
Lo Spuntino
420 m
Bar
490 m
Florio
700 m
IL Capolinea
1,2 Km
Bar dell'amicizia
1,2 Km
Ristoranti Ristoranti
Sciabà
170 m
La Coccinella
590 m
zhōng cān
730 m
Jonica
1,5 Km
La Casa di Bacco
1,6 Km
Mostra tutto

Caratteristiche

Rif.:
61179807
Piano:
Su più livelli di 3
Totale piani:
3
Condizionamento:
Predisposizione impianto
Ascensore:
No
Riscaldamento:
Autonomo
Mostra tutto
Prezzo Prezzo
€ 3.500 / mese

Classe Energetica

Questo immobile è esente da classe energetica
Anno di costruzione:
1970
Riscaldamento:
Autonomo
Tipo impianto:
Ad aria
Tipo alimentazione:
Altro

Ti interessa visionare l'immobile?

Fissa un appuntamento  Fissa un appuntamento

Richiedi informazioni

Clicca su Leggi per aprire l'informativa
* Questi campi sono obbligatori
Affiliato
Ovest Industriale Snc
Corso Francia, 113 Ter 10093 Collegno (TO)
Corso Francia, 113 Ter 10093 Collegno (TO)
Zona: Collegno-Grugliasco-Rivoli-Alpignano-Pianezza
Mostra su mappa
Affiliato
Ovest Industriale Snc
Corso Francia, 113 Ter 10093 Collegno (TO)

2026 Tecnocasa Franchising S.p.A. - P. IVA 08365160152 - Via Monte Bianco 60/A 20089 Rozzano (MI). Ogni agenzia ha un proprio titolare ed è autonoma. Privacy policy | Policy utilizzo | Cookie policy