Negozio in vendita

Rivoli, C.so Susa
€ 160.000
Prezzo aggiornato
1 locale 1 locale
70 Mq 70 Mq
2 bagni 2 bagni

Negozio in vendita

Rivoli, C.so Susa

Descrizione annuncio

VENDITA – Corso Susa, Galleria Piazza Martiri

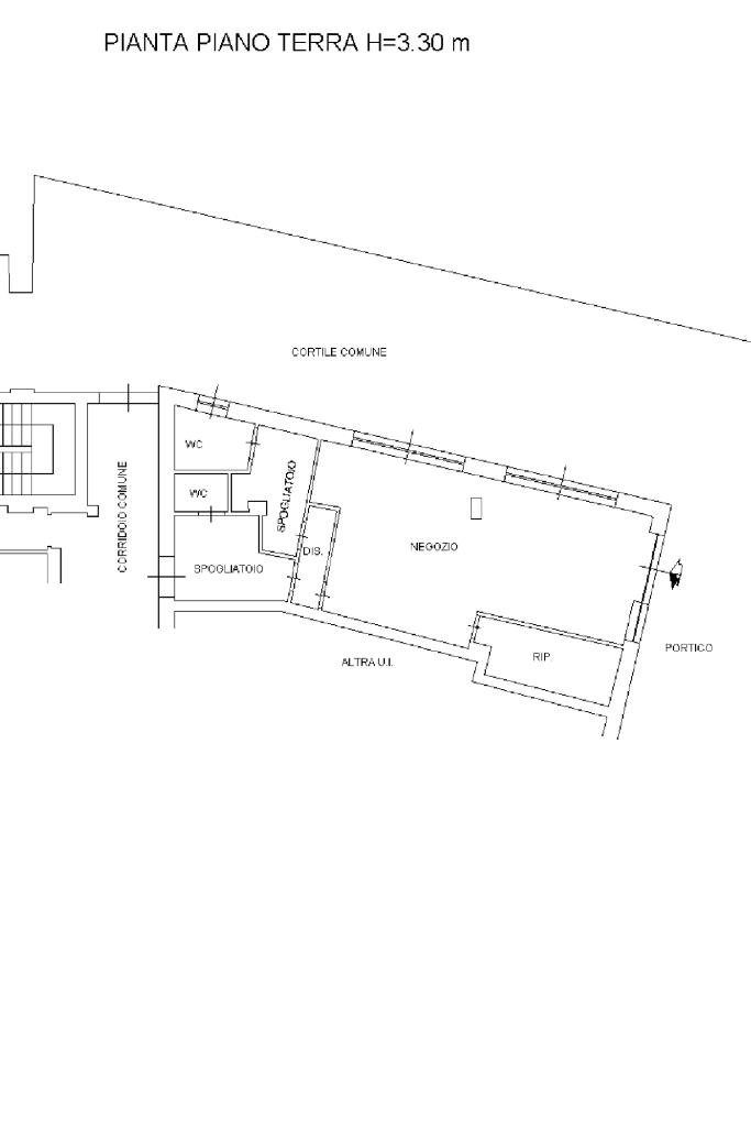
Locale commerciale di circa 70 mq situato nella galleria a pochi passi da Piazza Martiri con doppio accesso da Corso Susa e Corso Francia in posizione angolare con tre ampie vetrine che garantiscono grande luminosità. Lo spazio è stato ristrutturato e offre due ingressi indipendenti e due servizi igienici, serrande elettriche per la massima praticità, riscaldamento centralizzato a pavimento e impianto di condizionamento caldo e freddo per un comfort totale. Una soluzione moderna e funzionale perfetta per chi desidera avviare o ampliare la propria attività in un contesto elegante e di forte passaggio nel cuore della città.

Mostra tutto

Nelle vicinanze

Trasporto pubblico Trasporto pubblico
Alpignano
Alpignano
2,3 Km
Martiri della Libertà
Martiri della Libertà
70 m
Francia N.10 (Rivoli)
Francia N.10 (Rivoli)
90 m
Ricariche auto elettriche Ricariche auto elettriche
Mercatò Rivoli
1,8 Km
Mercatò Rivoli | EnelX fast
1,8 Km
EnelX EVA+ Centro Commerciale Auchan Rivoli
2,0 Km
RIVOLI Via Pavia | ENELX FAST
2,6 Km
Scuole Scuole
Liceo Scientifico paritario Lagrange
260 m
Scuola Primaria Don Milani
300 m
Collegio Scuola San Giuseppe
390 m
Scuole
460 m
Scuola Primaria "Walt Disney"
480 m
Farmacia Farmacia
Centrale
80 m
Farmacia
140 m
Farmacia Reale
270 m
Maestra
330 m
Comunale
430 m
Ospedali Ospedali
Ospedale di Rivoli - Emergency
1,2 Km
Ospedale di Rivoli
1,3 Km
Ospedali
2,8 Km
RSA Residenza al Castello
3,0 Km
Supermercati Supermercati
E'
90 m
Crai
330 m
Coop
370 m
Naturasi
870 m
iN's
1,2 Km
Negozi Negozi
Triangolo
40 m
Hik-Up
70 m
Ël forn ëd Rivulè
80 m
Intimo e Altro
160 m
Bertana
210 m
Bar Bar
Ary Caffè
180 m
Macchiato D'inchiostro
350 m
Il Sole
470 m
La Corona
500 m
Bar
500 m
Ristoranti Ristoranti
Opificio
60 m
La Grande Pizza
60 m
Gennaro Esposito
160 m
Kaizen
220 m
.Italy
240 m
Mostra tutto

Caratteristiche

Rif.:
61146886
Piano:
Terra di 5
Totale piani:
5
Condizionamento:
Autonomo
Ascensore:
No
Riscaldamento:
Centralizzato
Mostra tutto
Prezzo Prezzo
€ 160.000
Rata mutuo Rata mutuo
€ 759 / mese
Anche in affitto a
Proponi il tuo prezzoProponi il tuo prezzo

Altre caratteristiche

Descrizione dei locali
Bagno Con Finestra

Classe Energetica

C
C
C
C
C
C
C
C
C
EP globale non rinnovabile:
754.85 kW h/m² anno
EP globale rinnovabile:
103.72 kW h/m² anno
EP invernale del fabbricato:
EP estiva del fabbricato:
Anno di costruzione:
2013
Riscaldamento:
Centralizzato
Tipo impianto:
A pavimento
Tipo alimentazione:
Altro

Prezzo ridotto di €1 (20%%)

Ti interessa visionare l'immobile?

Fissa un appuntamento  Fissa un appuntamento

Richiedi informazioni

Clicca su Leggi per aprire l'informativa
* Questi campi sono obbligatori

Calcola il tuo mutuo

Semplice e senza impegno
Anticipo

( % )
Mutuo

( % )

pochi semplici passi

inserisci i tuoi dati
Questionario completato
Grazie per aver richiesto un appuntamento senza impegno con un nostro Consulente del Credito e Assicurativo.

Hai inserito correttamente tutti i dati necessari e a breve riceverai una e-mail con un link da convalidare per inviare i tuoi dati.
Affiliato
Ovest Industriale Snc
Corso Francia, 113 Ter 10093 Collegno (TO)
Corso Francia, 113 Ter 10093 Collegno (TO)
Zona: Collegno-Grugliasco-Rivoli-Alpignano-Pianezza
Mostra su mappa
Affiliato
Ovest Industriale Snc
Corso Francia, 113 Ter 10093 Collegno (TO)

2026 Tecnocasa Franchising S.p.A. - P. IVA 08365160152 - Via Monte Bianco 60/A 20089 Rozzano (MI). Ogni agenzia ha un proprio titolare ed è autonoma. Privacy policy | Policy utilizzo | Cookie policy